A townhouse in New York City, which is rumored to belong to the "Mission Impossible" actor, Tom Cruise, has hit the listing market for a good $28 million.
According to the Real Deal, the home was purchased in 2009 for $15.1 million by a buyer masked under a reputed LLC. However, various media reports stated that the mystery buyer was Tom Cruise. In 2012, shortly after Cruise and Katie Holmes announced their split, the property had also become a squabble issue.
However, a spokesperson for Brown Harris Stevens, the firm that owns the listing of the townhouse, said that neither Cruise nor an entity related to him owned the residence.
"The owner of 42 West 12th Street is not Tom Cruise nor any entity related to him. The seller is a private individual who deserves to have their privacy respected and as such Brown Harris Stevens will not provide any information regarding the owner," the spokesperson said to the Real Deal.
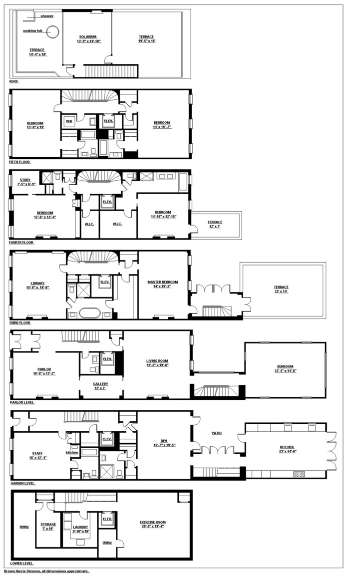
According to the listing records, the home has six floors and boasts interior space of around 8300 square feet. Outside, the home has around 2000 square feet of recreation space. Complete with five terraces and a fully furnished basement, the townhouse is located at Greenwich Village, West 12th Street.
As per the floor plan, the lower level basement has a lot of storage space, a laundry and an exercise room. The Garden level floor comprises of a staff quarter with a small kitchen, a den, a patio and a big huge modern kitchen as well. The parlor level floor has a sunroom, a living room, a gallery and a parlor. The third floor has a library, a bedroom and a terrace. The fourth floor has two bedrooms with walk in closets, a study and another terrace. The fourth floor has two bedrooms.
All the floors can be accessed via elevator or stairs.
While speculations about the townhouse belonging to Cruise or not remain un-confirmed, he recently sold his condo in the American Felt Building in East village in a private sale for $3 million. Meanwhile, the next installment of Mission Impossible is already in the anvil. Cruise will be producing the movie along with director J.J Abrams, reports SC Times.
© 2026 Realty Today All rights reserved. Do not reproduce without permission.



