Looks like the "Sinister" star, Ethan Hawke, has a thing for multiple-story townhouses. Just after news of his "colorful" Chelsea townhouse going under contract surfaced, the actor and his family have reportedly decamped to a Brooklyn area home in New York. Price tag - $3.9 million.
According to the Real Estalker, Hawke and family purchased the place sometime in December 2012. Located in the neighborhood of Boerum Hill, Hawke will live among fellow actors and actresses like Keri Russell, Michele Williams, Sarah Jessica Parker and Matthew Broderick.
The listing records of the home reveal that the residence was completely renovated in 2003. Before the overhaul, the building was divided into two units, together comprising of six bedrooms and five full and two half bathrooms.
Currently, the home has six bedrooms and five full and one half bathroom. Spread over an area of 4026 square feet, the place has four stories and a ground level basement as well.
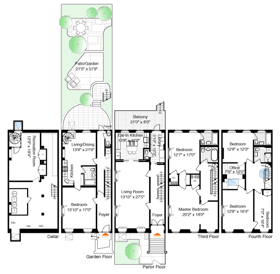
According to the floor plan, the ground level basement has a recreation room and huge storage areas.
The main floor opens through a narrow foyer into a large living room with an open kitchen. The floor also has a bedroom. The main level has a large patio opening into a green garden with a large sitting area.
Wooden stairs lead up to the next level- the parlor floor. This floor also has a large bedroom, another huge living room, an eat-in kitchen, a library and a balcony.
The Third floor consists of the master suite with an en-suite bathroom, and another bedroom as well. The fourth floor has an office/study and three other bedrooms.
Check out the floor plan, here.
News of the new home comes along with the scary trailers of his upcoming thriller "The Purge".
Check out the trailer below:
© 2026 Realty Today All rights reserved. Do not reproduce without permission.



