NBA Knicks Superstar Carmelo Anthony a.k.a "Melo" and his not-so-estranged wife La La have reportedly signed documents for renting a condo in the Museum Mile building on Fifth Avenue and 102 Street, New York, for around $29,000 a month.
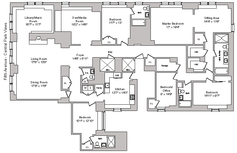
According to the listing records and the floor plan revealed by the Real Estalker, the home is a 4022 square feet condo comprising of five bedrooms and five bathrooms.
The home can be accessed through a private elevator opening into a combination space of a living and dining room. Straight up the living room is the music room/library. A media room/den sits adjacent to the library. Along a narrow foyer is a modest sized modern kitchen with a built in pantry-storage. The master bedroom has an adjoining huge sitting area, walk in closets and a large attached bathroom with his and her sinks. All the bedrooms have attached baths.
The building also offers decent amenities. A modern fitness center, a children's playroom and a lounge are some of its facilities, reports Curbed.
Sometime in October 2012, it was reported that Melo and La La were looking for a place after their rented New York apartment was listed for sale by its owner. The couple was spotted looking for homes in the Upper East Side.
However, in January, Melo and La La were said to be living in separate homes after Anthony had a verbal fight with Celtics' power forward, Kevin Garnett over La La. But it now looks like they are moving back together with the signed rental agreement.
"The couple are in the process of moving in now. Although they were going through a rough patch, they have worked things out and have fully reconciled," a source told the New York Post.
Check out the video of the players' squabble below:
© 2026 Realty Today All rights reserved. Do not reproduce without permission.



